Workplace Design

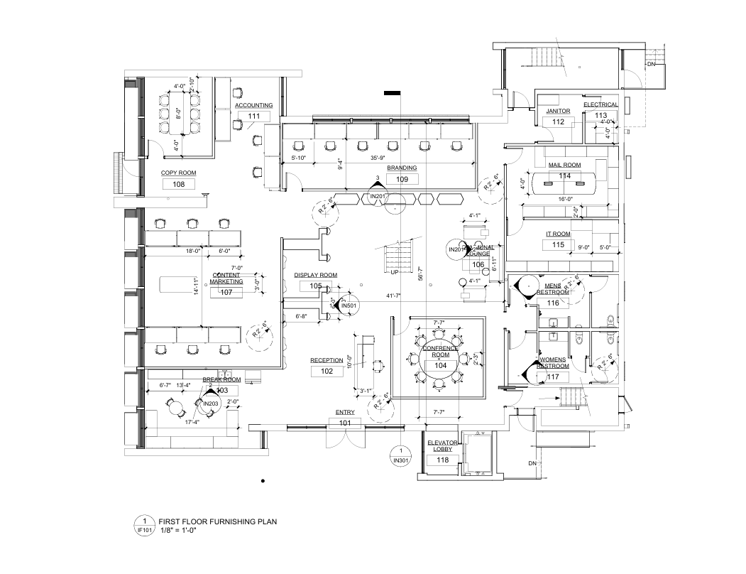
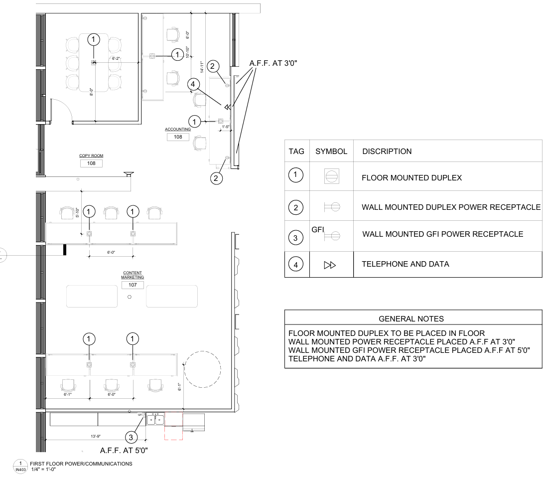
In this course, I developed a full set of construction documents and FF&E specifications for a workplace interior concept designed for the textile company St. Frank. The project focused on translating the brand’s artisan-driven identity into a functional workspace through material research, detailed documentation, and thoughtful programming. I created floor plans, elevations, sections, and schedules that demonstrated a clear understanding of workplace standards, while also curating furnishings, finishes, and textile applications that reflected the company’s handcrafted aesthetic.

Credits

REVIT

ENSCAPE

INDESIGN

PHOTOSHOP